Wintergarten - Hinter Ägidien - Braunschweig

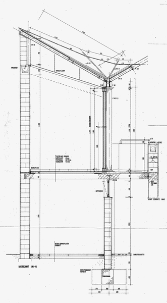
Die Aufgabe lautete, eine externe Erschließung zweier getrennt genutzter Geschosse im denkmalgeschützten Fachwerkhaus nahe der Aedidienkirche, Braunschweig, zu entwickeln. Als ergänzendes Element liegt im Obergeschoss ein Windfang / Wintergarten. Dieser neue Baukörper aus Stahl und Glas hebt sich durch sein Material vom Bestandsbau ab, nimmt aber gleichzeitig strukturelle Elemente der Fachwerkfassade auf. Im Sowohl der massive Sockel als auch das dahinterliegende Treppenelement und das leicht gekrümmte Kragdach des Wintergartens folgen dem Lauf der angrenzenden Straße.

 

Druckversion | Sitemap
© ARCHITEKTEN KLAASSEN - UHDE